由于对超载超限车辆的严格执法,散装水泥运输车主为了在限载范围内尽量多装,往往单车重复装卸,大型重载车在出厂磅房狭窄坡道处频繁倒车带来了极大的安全风险;同时也造成厂区的二次扬尘污染和开关罐盖等一系列安全问题。为此,2018年10月份冷水江公司使用了一套河南丰博自动化有限公司“科里奥利秤”,实施水泥散装计量放灰技术改造。通过近几个月的运行观察,计量精度和计量输送能力都达到了设计目标。
一、实施水泥散装自动控制改造的原因
近年来,在国家政策和市场双重推动下,水泥散装发展迅速,我公司散装发运量在总销量中占比超过了50%。但散装装车一直以来依靠人工操作,存在装车数量误差大、工人劳动强度高、安全事故频发等诸多问题。这主要是由于散装装车与计量环节分离;且计量控制手段落后,导致装车难以精确定量。

原水泥散装装车模式
二、实施水泥散装自动控制改造的技术方案及费用预算
1、水泥散装自动控制改造的技术方案
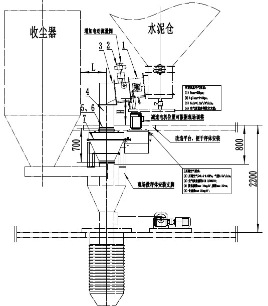
A 在现有的散装水泥出库斜槽上增设电动流量调节阀,放灰下料管位置安装科里奥利粉体秤,安装高度约0.73m,并接入压缩空气管道用于轴承密封。
B 新增设备及原有的气动开关阀、收尘器、散装头升降机构全部并入配套的PLC计量控制系统。现场安装控制面板,根据车型大小及额定载重量,在触摸屏上输入装车重量,系统自动控制装车,无需人工干预。
C 散装水泥定量装车系统计量输送能力为: 250m³/h,与原设计能力匹配,可以实时对物料流量进行控制,不受物料及其它因素影响,计量误差≤±1%。
D 系统兼容性强。后期定量放散设备可同步并入智能物流系统,实现自动装车。进一步提高装车效率,降低散装水泥发运成本。提高企业的管理信息化水平和企业社会形象,并增加企业的经济效益。

自动化定量装车模式
2、水泥散装计量控制核心技术优势
该散装计量系统的核心设备是采用了新型科氏力秤。该秤的技术特点是:
A 测量原理先进。
利用“科里奥利”力测量每个瞬时扭矩,从而测出实际瞬时流量;与传统的测量原理不同,质量流量的直接测量不受任何外力影响,对风压、风力、磨损、流量的变化等干扰因素不敏感;计量系统运行稳定、可靠。正常工作状态时,计量精度≤1%。
B 计量稳定性高。
测量不受任何外力影响,轴扭矩反馈控制速度仅为100ms;进料通畅,出料顺利,尤其适用大流量粉体物料的计量。
C 系统密封性好。
不需配套收尘设施,环保性能好;而且设备体积小,不需做基础,土建、安装费用低,另外,维护量小,维护成本也低。
控制系统设计
该系统采用 PLC控制系统对散装过程进行全程监控,而且还能与一卡通软件结合 ,对整个散装水泥发运过程进行自动化控制,包括读卡、装车、计重及结算等系列控制。
散装车读卡后,车号、装载量等数据即输入系统,操作员只要放好散装头后,通过一键操作,系统即可自动完成放料、计量、停料的整个装车过程,并且将车号、设定装载量、实际装车量、装车时间等数据自动保存。
三、使用效果评价
1、水泥定量装车系统投运后,灌装 35t水泥只用时6—8min,实现了散装水泥一次灌装到位,消除了驾驶员为避免超载罚款重复装卸的情况,提高了散装发运效率。基本达到了250m³/h的装车能力和计量精度≤±1%设计目标。
2、提高了散装机的使用效率和操作人员的工作效率,实施散装计量装车,操作员只需要放好散装头,在控制面板输入装车量,一键启动,系统即可自动完成放料、计量、停料的整个装车过程。
3、改善了现场环境。由于计量放灰流量稳定,装车时现场灰尘少了,同时定量装车杜绝了因操作不慎料满溢出的现象。
4、装车数据及现场安装图


现场设备安装图
(本文作者:华新水泥有限公司 许高鹏)


